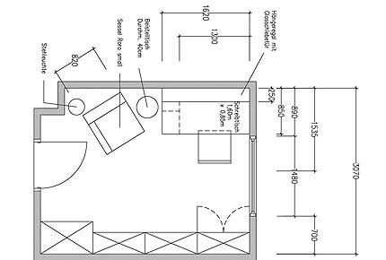
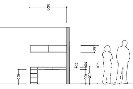
INNENARCHITEKTUR
Wir bieten Ihnen innenarchitektonische Lösungen, die mehr sind als das dekorieren mit Designermöbeln. Wir gestalten Ihre Räume mit einem kompletten Innenausbau. Denn erst ein fachlich geplantes maßgeschneidertes Raumkonzept macht eine Wohnung zum ganz persönlichen Zuhause oder einen Laden, ein Büro, eine Praxis zum individuellen Arbeitsplatz.
Unsere Schwester, Heike Schäfer Kolberg, Dipl. Designerin Innenarchitektur, berät Sie auf Wunsch bei Einrichtungsfragen und erstellt Konzepte, Pläne und 3D-Visualisierungen, in denen sich Ihr Stil und Ihre Persönlichkeit widerspiegeln.
Kontakt: www.schaefer-kolberg.de